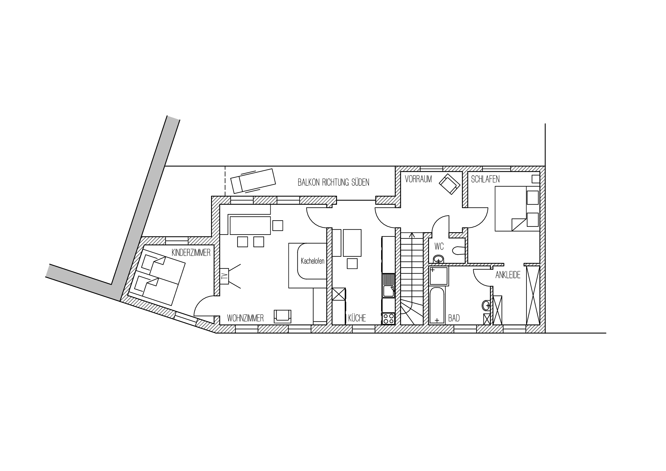
merkmale
- Wohnfläche ca. 100 m²
- privater Wohnungseingang
- Küche mit hochwertiger Ausstattung und Küchentisch
- Wohnzimmer mit Esstisch, Sofa, Sessel und Kachelofen
- ein Schlafzimmer mit Doppelbett 1,80 x 2,00 m und Ankleide
- ein Schlafzimmer mit zwei Betten 0,90 x 2,00 m
- Badezimmer mit Badewanne, Dusche, Waschbecken und WC
- ein separates WC
- überdachter Balkon in Richtung Süden mit Bergblick
ausstattung
- Backrohr, Mikrowelle, Spülmaschine, Kaffeemaschine, Wasserkocher
- Fußbodenheizung in Küche und Badezimmer
- Solnhofener Platten und Dielenböden
- WLAN & Sat. TV
- Zusatz- oder Babybett auf Wunsch
- Auf Wunsch können Sie folgende Leistungen dazu buchen: Frühstück oder Brötchenservice
- Nichtraucherwohnung
aktueller preis
130,00 - 170,00 €
Preis pro Wohnung und Nacht zzgl. Kurtaxe, inkl. Bettwäsche und Handtücher.
Für Zusatz- oder Babybett wird ein Zuschlag von 25,00€ pro Nacht erhoben.




